
(If you do not have an agent and work directly with the listing agent)
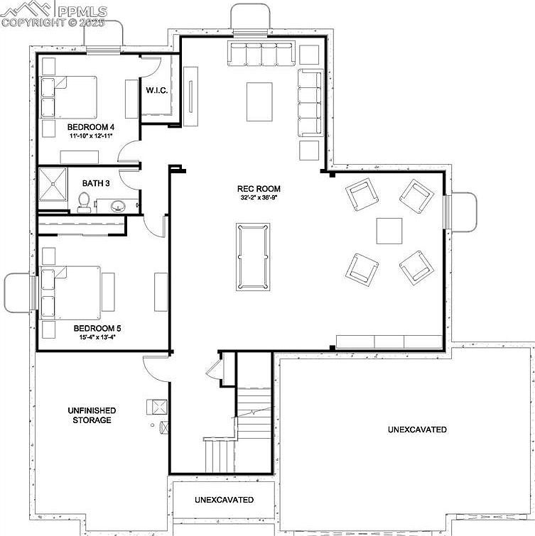
The Walter offers a distinctive take on ranch-style living, blending versatile spaces, modern finishes, and thoughtful design to create a home that feels both expansive and intimate. Set on a spacious homesite in Monument, this 5-bedroom, 3.5 bath home spans 3,879 square feet with a flexible layout perfect for entertaining or private retreats. From the moment you enter, The Waltera??s unique layout sets it apart. The open-concept design connects the kitchen, dining area, and great room while offering privacy with distinct living zones. The kitchen is a chefa??s dream, featuring an oversized island, ample storage, premium Samsung appliances, and direct access to the covered back patio for effortless indoor-outdoor living. The great room is filled with natural light from oversized windows and anchored by a central fireplace for a warm, welcoming feel. A private study offers a quiet space for a home office, library, or creative retreat. The primary suite is a retreat within the home, featuring a spa-inspired ensuite bath with dual vanities, a freestanding soaking tub framed between them, Kohler fixtures, and lighted mirrors with adjustable color settings. Two additional bedrooms on the main level share a Jack and Jill bath, providing comfort and privacy for family or guests. The finished basement expands the homea??s possibilities with a large rec room, two bedrooms, and a full batha??ideal for a guest suite or game room. Designed with the Grand Lake interior package, The Walter exudes timeless design and sophistication with white cabinetry, crisp quartz countertops, and soft, neutral flooring. High-end Samsung appliances, Kohler fixtures, and smart home features, including a video garage opener and smart doorbell, enhance modern convenience. The farmhouse-style exterior blends rustic charm with contemporary appeal. Located in Jackson Creek in Monument, this home offers mountain views, top-rated schools, and easy access to outdoor recreation. Ready for a January 2026 closing.
357 Grand Summit Dr Monument, CO 80132