
(If you do not have an agent and work directly with the listing agent)
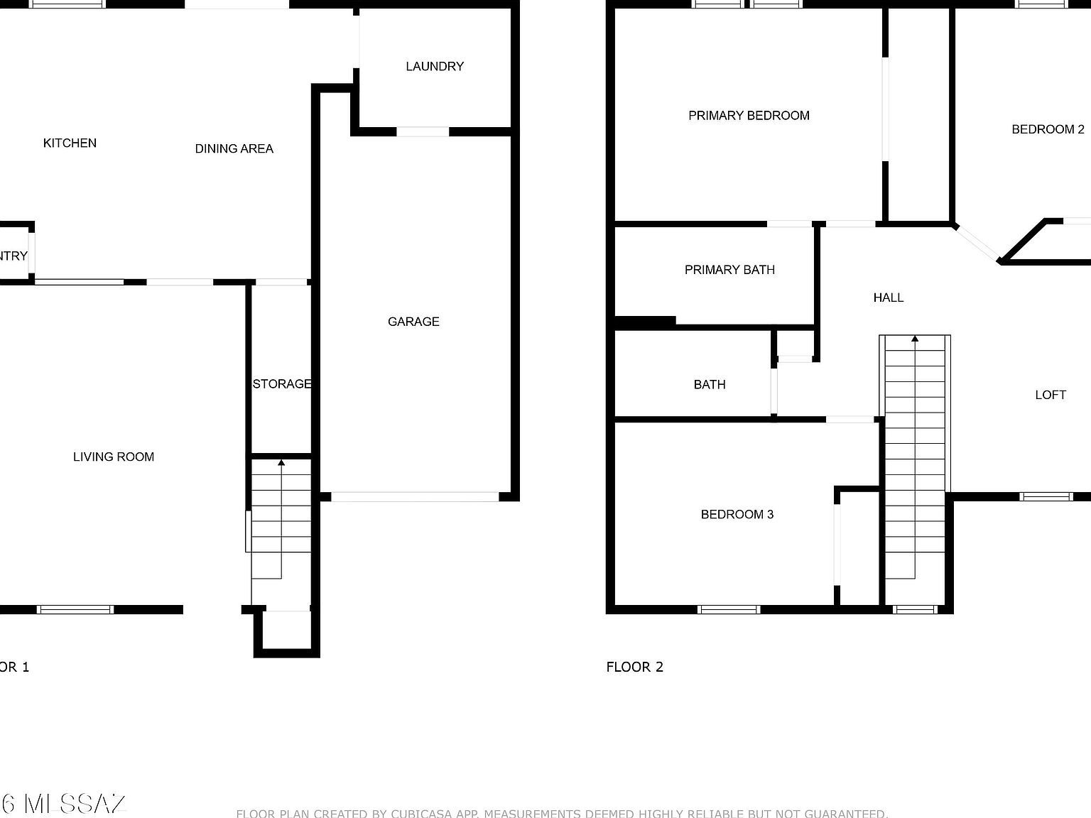
Welcome to Riverhaven! Located in a great community next to The Loop, this beautifully updated house features new flooring, recent roof (2 years), fresh interior paint, and clean carpets. The island style kitchen includes a new dishwasher and a convenient layout. All appliances come with the home, making it move in ready. Enjoy energy efficiency with a radiant barrier attic, and comfort with new bedroom blinds. The deep patio offers afternoon shade, perfect for relaxing outdoors with a view of the Catalina mountains. Access 100+ miles of paved bike/walk path next to this central Tucson community.
3334 N Sierra Springs Dr Tucson, AZ 85712