
(If you do not have an agent and work directly with the listing agent)
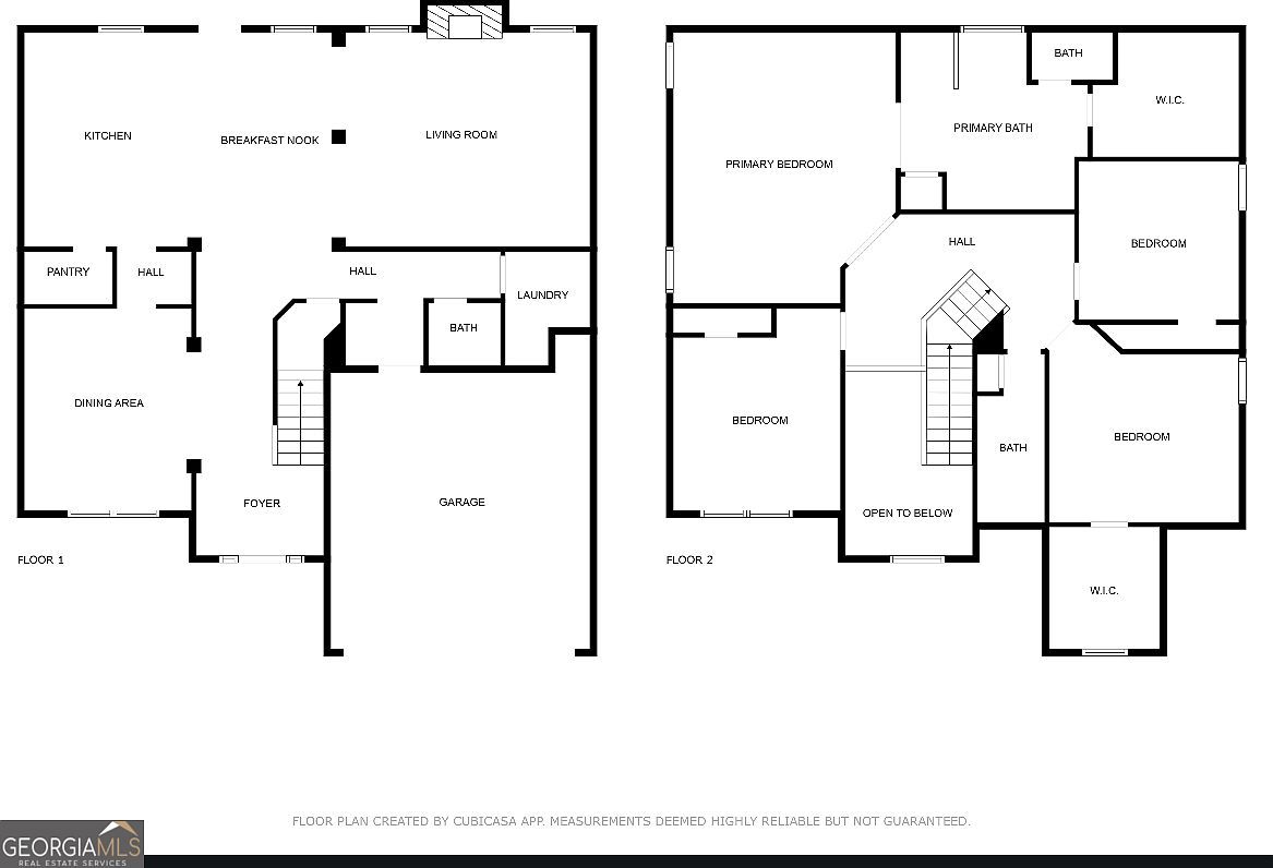
Beautiful home like new, built (2021), situated in a cul-de-sac that has a view of Smith Lake. Enjoy sitting on the front porch or entertaining on the private back patio with a wood burning fireplace and large flat screen. Once you enter, notice the arch entry ways, 12" ft. ceilings, solid engineered hardwood floors. Separate dining room with detailed coffered ceiling. Dining room leads to a gorgeous kitchen that offers; granite countertops, subway tile backsplash, walk-in pantry, island with seating, stainless steel appliances, natural light and recessed lighting. Open living room with fireplace. Laundry room with drying rack area, mudroom off the two car garage with half bath on main floor. Upstairs includes four bedrooms including a huge master with a spa-like ensuite. Relax in the soaking tub or walk-in shower with a glass door, double vanities and large walk in closet. Spacious guest bedrooms with walk in closet. Convenient to Robins Air Force Base, restaurants, shopping and zoned Veterans High School. Call today to make this your home!
316 Shoshone Cir Kathleen, GA 31047