
(If you do not have an agent and work directly with the listing agent)
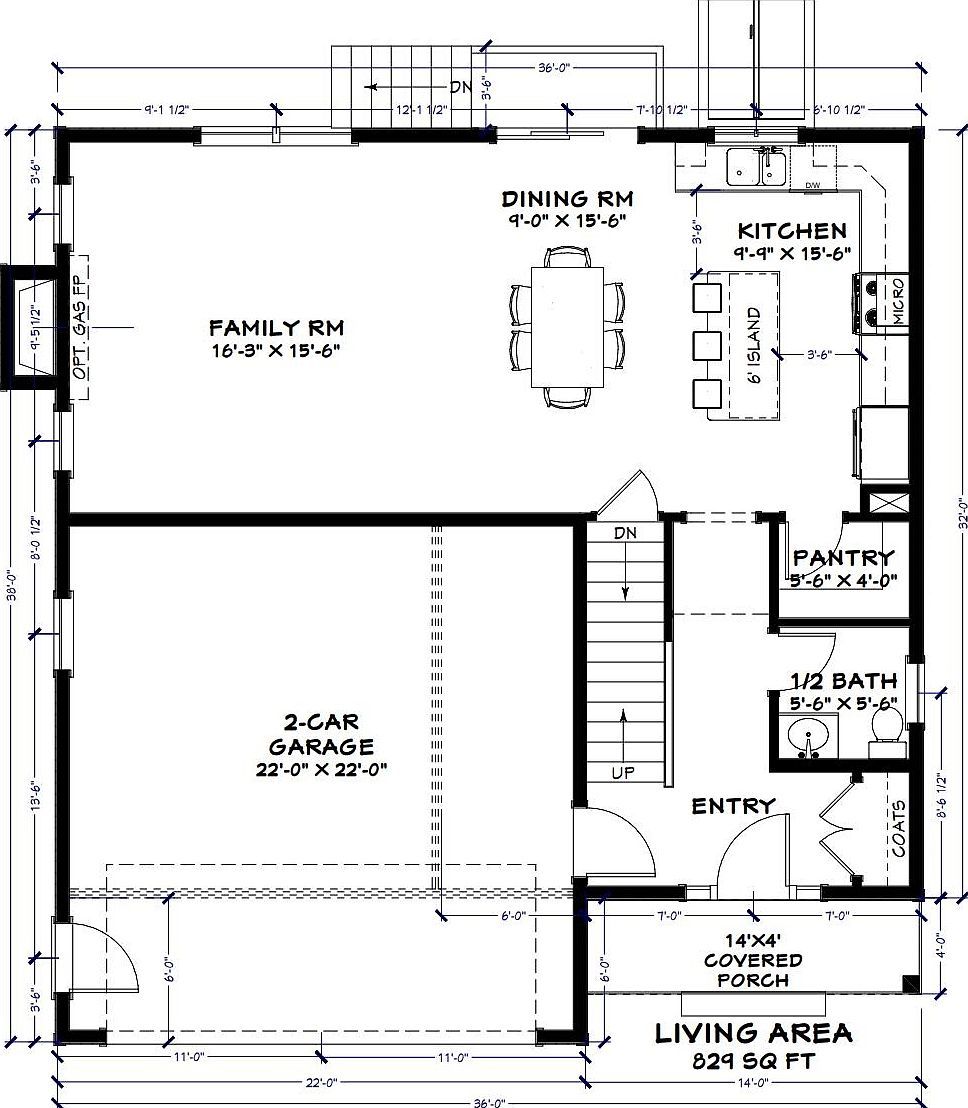
DonAca?!a?ct miss this opportunity to own a beautifully designed brand new colonial in a convenient Nashua location. This 3-bedroom, 2.5-bath home offers a modern open-concept layout perfect for todayAca?!a?cs lifestyle. The spacious kitchen flows seamlessly into the dining and living areas, creating an ideal space for entertaining or everyday living. Upstairs, youAca?!a?cll find three generously sized bedrooms, including a primary suite with a private bath. Additional highlights include a 2-car garage, energy-efficient construction, and a full unfinished basement offering endless potential for future expansion, storage, or customization. Best of all, there is still time for buyers to select and upgrade finishes to truly make this home their own. Enjoy the benefits of brand-new construction in a desirable Nashua neighborhood close to shopping, dining, and commuter routes. House is currently being framed.
3 Kirk St Nashua, NH 03064