
(If you do not have an agent and work directly with the listing agent)
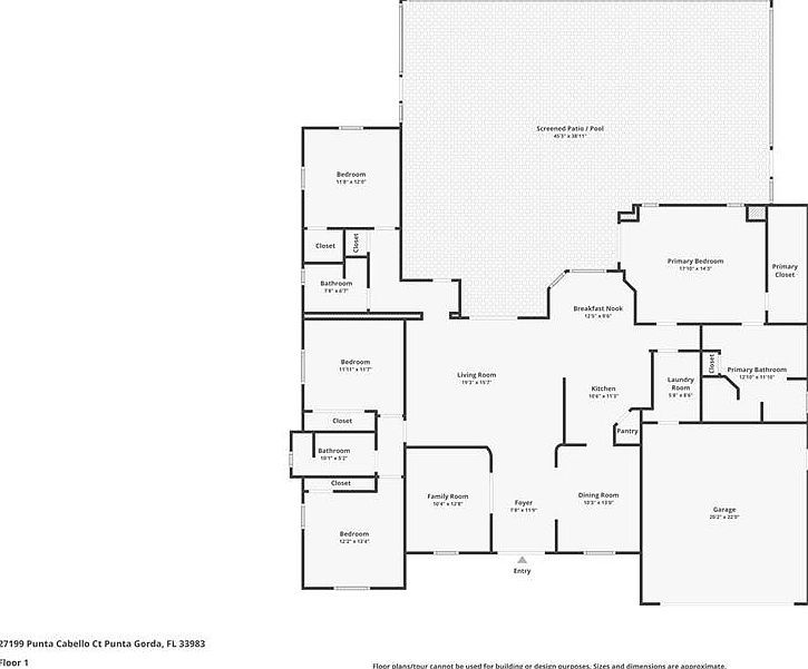
Need more room for your extended family? This 4 bedroom, 3 bath pool home has plenty of room for family and friends with over 2400 square feet of living space, great room, family room, dining room, and spacious kitchen. This residence is nestled in the popular deed restricted community of Deep Creek with expansive view of beautiful greenbelt. When you enter the home you will notice the bright and open floor plan with tasteful appointments including decorator light and fan fixtures, color accent walls, wood plank tile flooring, ceramic tile, and Pergo flooring throughout, and blinds throughout. Spacious kitchen boasts stainless appliances including 3 door fridge, pantry, casual dining area overlooking pool and greenbelt, and long breakfast bar that opens to the main living areas for easy entertaining. The generous ownera??s suite will be your private retreat with bump out wall for extra living space, walk in closet, and private en suite bath with his and hers sinks, garden soaking tub, and spacious custom tiled Roman shower. Therea??s ample storage with additional walk-in closet in 4th bedroom. Plus, the other bedrooms have private access to the bathrooms and can be closed off with pocket doors providing privacy for you and your guests. You will spend most of your leisure time relaxing on your extended lanai or lazing in your heated pool overlooking the park like, private back yard with a scenic and serene view of greenbelt. Other key features include newer roof, dedicated laundry room, storm shutters, and public water and sewer service providing convenience and reliability. Inviting curb appeal with pillared double door front entry, landscape curbing and decorative rock, and flowering shrubs and mature trees. Deep Creek is a deed restricted community with lakes, canals, and greenbelts throughout the community, park, and playground. And Deep Creek golf course nearby! Proximity to local waterways and beaches, dining, shopping, and golf courses makes this property ideal for the Florida lifestyle. Also, easy access to public parks with bike and walking trails and picnic areas, and boat ramps providing access to many waterways, beautiful Charlotte Harbor, the Peace and Myakka Rivers, and the blue waters of the Gulf of Mexico. And easy access to Interstate 75 with Fort Myers and Naples to the South and Sarasota and Tampa to the North. Quiet community, yet all conveniences and amenities nearby. Great home in a great neighborhood. **PLEASE ENJOY THE 3D INTERACTIVE VIRTUAL TOUR ASSOCIATED WITH THIS LISTING
27199 Punta Cabello Ct Punta Gorda, FL 33983