
(If you do not have an agent and work directly with the listing agent)
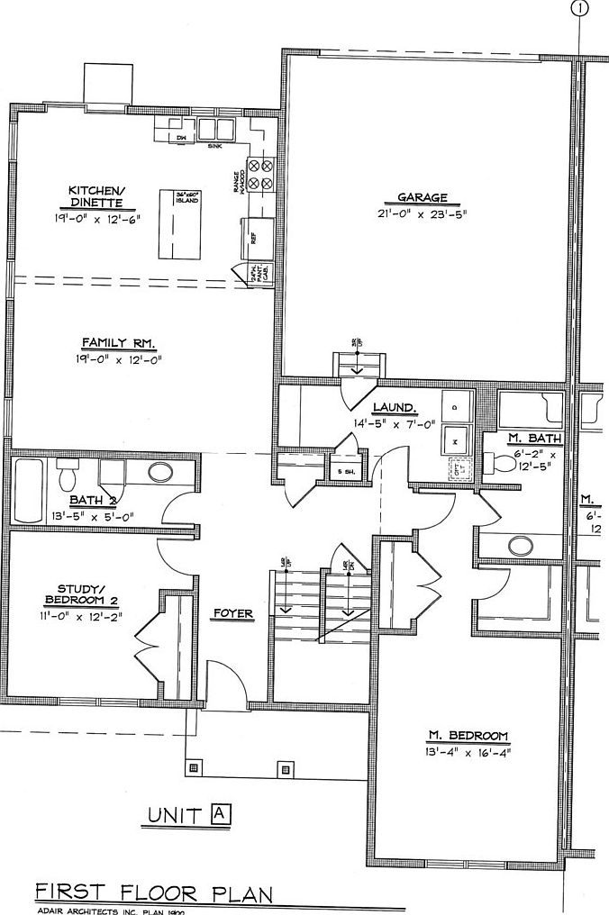
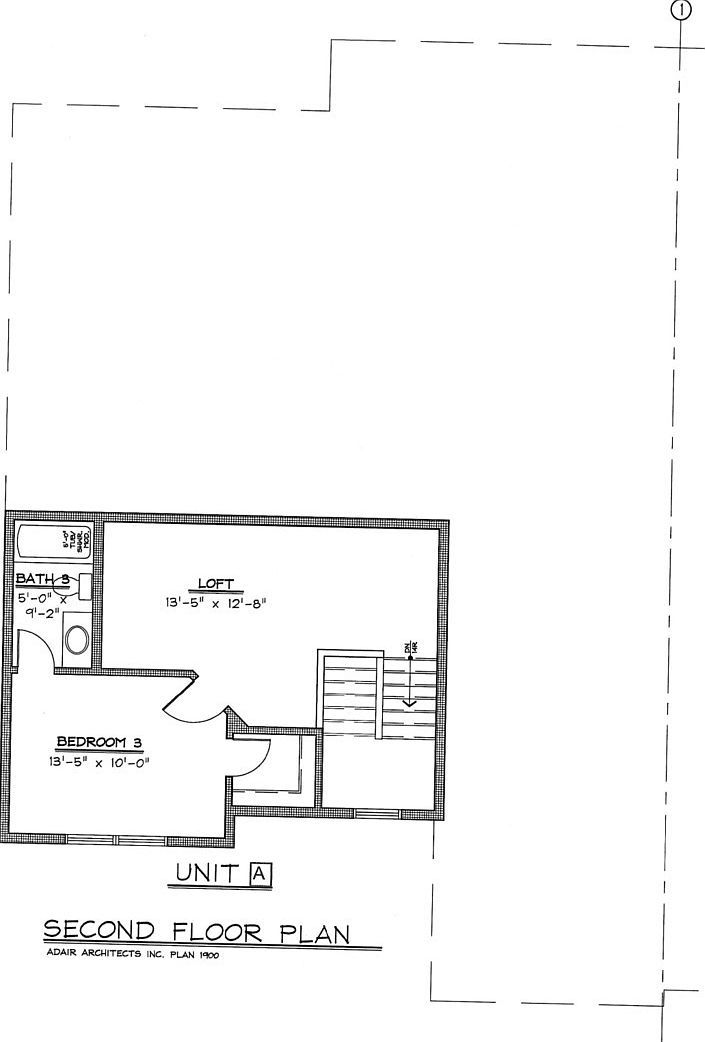
Exciting new construction in Channahon! The duplexes are ready to go and welcome to the heart of the new downtown Channahon, where you can buy this proposed new construction spacious duplex at a fantastic price point. Whether you want 2 beds, 2 baths with a loft or 3 bedrooms with 3 baths, we can easily meet your needs. This new downtown area is the place to be filled with housing, mixed use commercial and all in a highly desirable and peaceful location feeding to Top rated schools. You can't find a better place to enjoy life. These duplexes can be either 2 or 3 bedrooms, 2 or 3 full bathrooms and they offer a flexible, open floor plan with vaulted ceilings and large, bright windows that flood the space with natural light. The chef's gourmet kitchen features a spacious island, stainless steel appliances, and quartz counters, perfect for cooking and entertaining. The first floor master bedroom features ample closet space, a spa-like luxury bathroom with a walk-in shower, a large vanity, and extra storage space. The flexible, sizable open loft can be used as a media room, home office, or a playroom. With an included full basement, you have plenty of room to create your dream space. This home is constructed with only the finest materials and features top-of-the-line construction, as well as a fully insulated and dry-walled over-sized 2 car garage. This home is maintenance-free which lends to a carefree lifestyle. This area has access to many local amenities including the aquatic center, parks, schools, shopping, and entertainment making it a wonderful place to live. Located conveniently near I80 and I55, this home is in an up-and-coming area of downtown Channahon and feeds into top-rated schools. With a one-year builder's warranty included, you can have peace of mind that your home will be built with quality in mind. Don't miss out on this phenomenal opportunity to own a home in the new downtown Channahon area. You won't find a bigger duplex home with more included features anywhere! Financing incentives for Channahon Town Center are available when you use the builder's preferred lender so take advantage of great interest rates when you build your new home here. Pricing of this home is for the 3 bedroom, 3 bath duplex. Inquire within for 2 bedroom and a loft pricing. There are no lot premiums for the duplexes. This is an exciting development in the heart of Channahon so hurry and get in on it!
25215 W Saint Elizabeth Dr #B34 Channahon, IL 60410