
(If you do not have an agent and work directly with the listing agent)
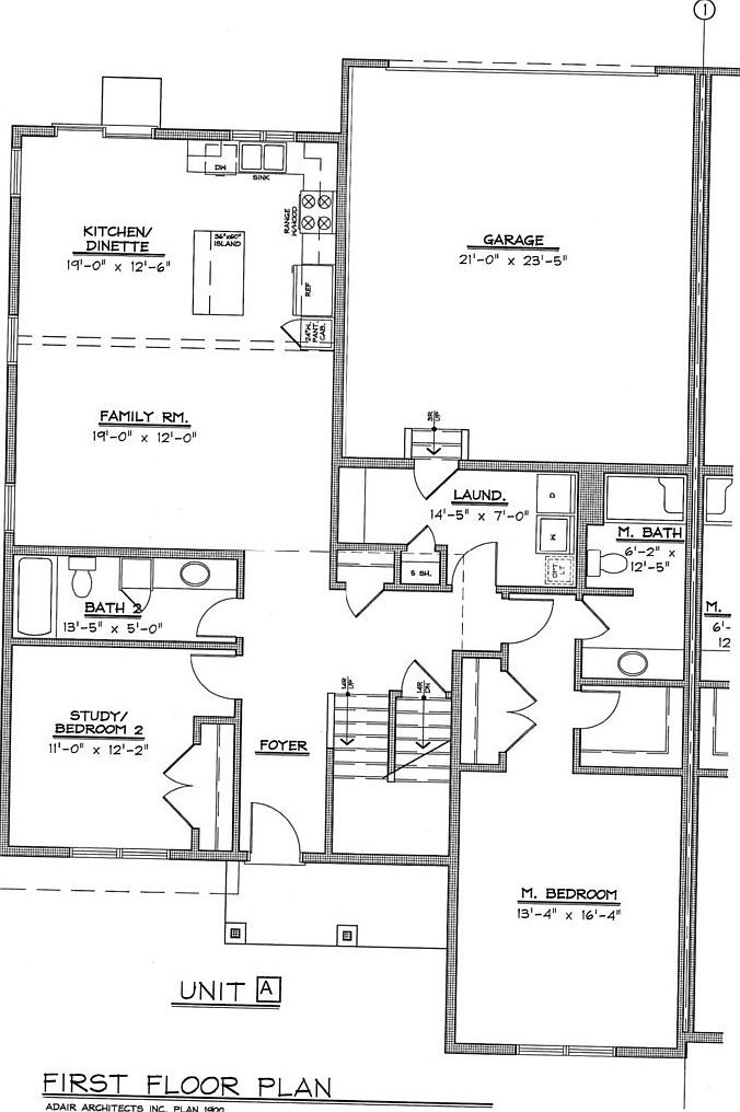
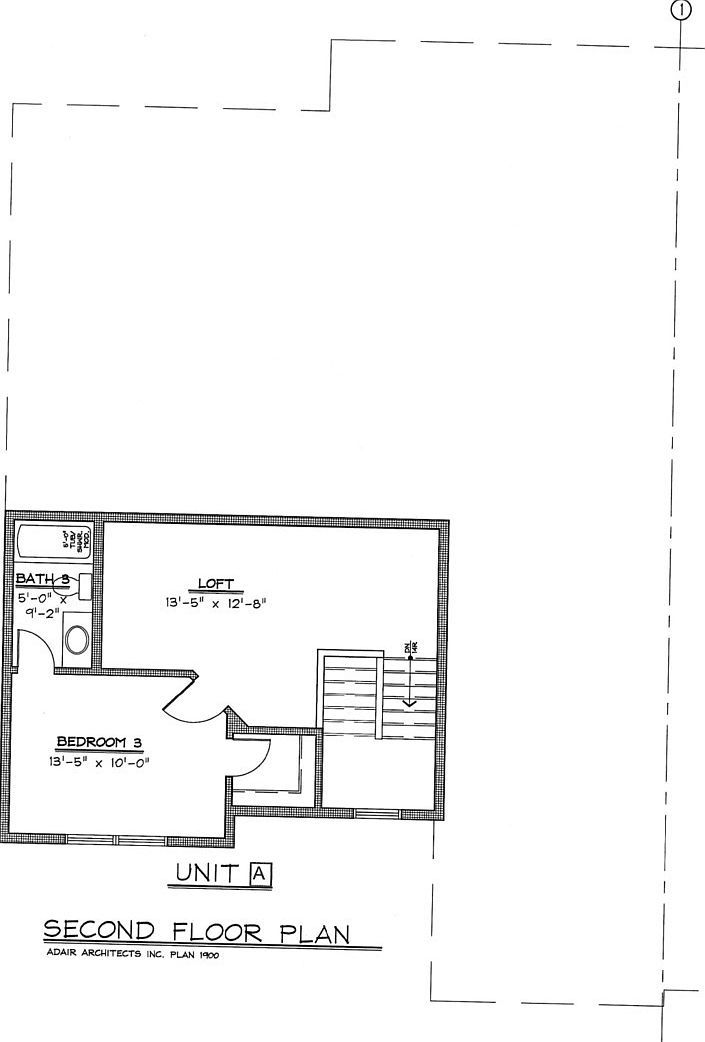
Looking for a fantastic opportunity to be a part of the new downtown Channahon? Look no further than this proposed new construction spacious duplex, set in the heart of the growing area. With three bedrooms and three full bathrooms, this home boasts an open and flexible floor plan with vaulted ceilings and bright windows throughout. Enjoy cooking in your chef's gourmet kitchen with a boastful island, stainless steel appliances, and quartz counters. The first-floor master bedroom features ample closets, a spa-like luxury bathroom with a walk-in shower, a large vanity, and extra storage. Plus, with a flexible sizable open loft, you can have your dream area whether a media room, home office or playroom. The home also features a fully insulated and dry-walled 2-car garage, top of the line construction with only the finest materials, and an included full basement for your enjoyment. Plus, with a one-year builder's warranty included, you can rest assured that your home will be built with quality in mind. Conveniently located near I80 and I55, this maintenance-free living home is in a highly desirable and peaceful location, with all the coming amenities of a growing area, including aquatic center, parks, top rated schools, shopping, and entertainment. Don't miss out on this premier price point for your new construction home in downtown Channahon. With builder incentives and phenomenal pricing, this is the best deal around. You won't find a bigger duplex home with more included features anywhere! You have to see it to believe it. One of only a few left. INCREDIBLE financing incentive for Channahon Town Center is ready for you today! Use the builder's preferred lender and take advantage of interest rates that are only available when you buy your new home here. Reach out for all the details today and inquire within. Contact us today to make this your new home!
25211 W Saint Elizabeth Dr #B35 Channahon, IL 60410