
(If you do not have an agent and work directly with the listing agent)
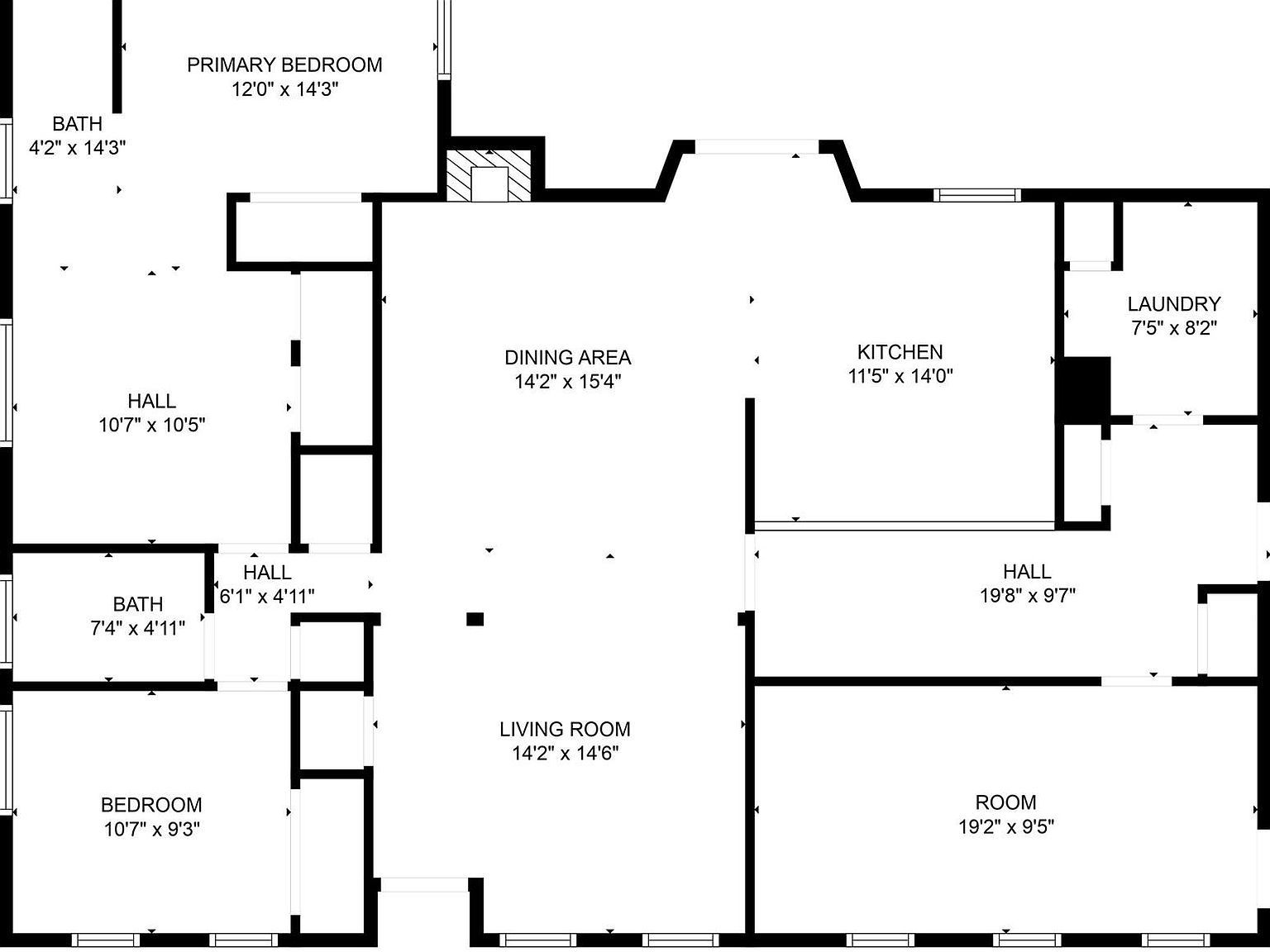
Low Price for Cash Buyer / Quick Close. This house already has an expanded and updated kitchen, newer roof, water heater was replaced in the last year... huge lot. Ready for you! Welcome to 2307 Mimosa Dra??a Whispering Oaks charmer nestled among towering trees on an oversized lot. This spacious, open, and bright 3+ bedroom home features an expanded kitchen with sleek cabinetry and stainless steel appliances, vaulted ceilings, and a cozy fireplace in the living area. There is a studio/4th bedroom that offers flexibility as a study or office, while the large, fenced backyard invites outdoor enjoyment. With an indoor utility room, ample natural light, and modern upgrades, this home perfectly balances comfort and style in a highly desirable Austin neighborhood. Buyer to verify all MLS information. Key updates include a new roof (1 year old) and a new water heater (3 months old). This house does need some work (flooring, and master bedroom+3rd bedroom reconfiguration). Terrific location in the heart of South Austin. Experience unmatched value with our exclusive Byrne Buyer Guarantee and tailored Buyer Mortgage Incentives partnerships! From saving thousands on closing costs to securing the best rates and a guarantee that ensures your satisfaction, wea??re redefining what it means to buy with confidence. Call for Details! Buyer to verify all MLS information. Do you have a house to sell? Call today to learn more about our tiered marketing programs.
2307 Mimosa Dr Austin, TX 78745