
(If you do not have an agent and work directly with the listing agent)
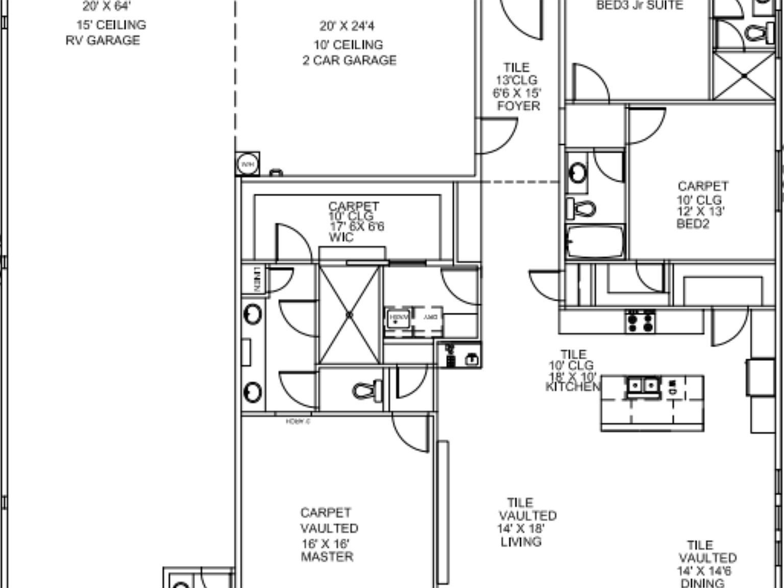
This dual suite home features 3 bedrooms and 3.5 bathrooms. The post-tension concrete foundation ensures durability, while net and blow insulation provide energy efficiency. The exterior features sleek lines with dash stucco and a hip roof on the RV garage. Standard features include hand-textured walls, 36" cabinet uppers, and stylish granite countertops throughout. The kitchen boasts a large island and a walk-in pantry with convenient plugs. Elegant lighting and plumbing choices add sophistication, while 8' tall interior doors create a grand ambiance. Entertain guests in the living room complete with a wet bar. The second ensuite bedroom offers generous space, perfect for guests or family members. The RV garage has a 14' tall door and is 18'10" x 63' with 1/2 bath. *virtual tour and photos may show optional upgrades*
2200 Model Plan, Viewpoint Estates Lake Havasu City, AZ 86404