
(If you do not have an agent and work directly with the listing agent)
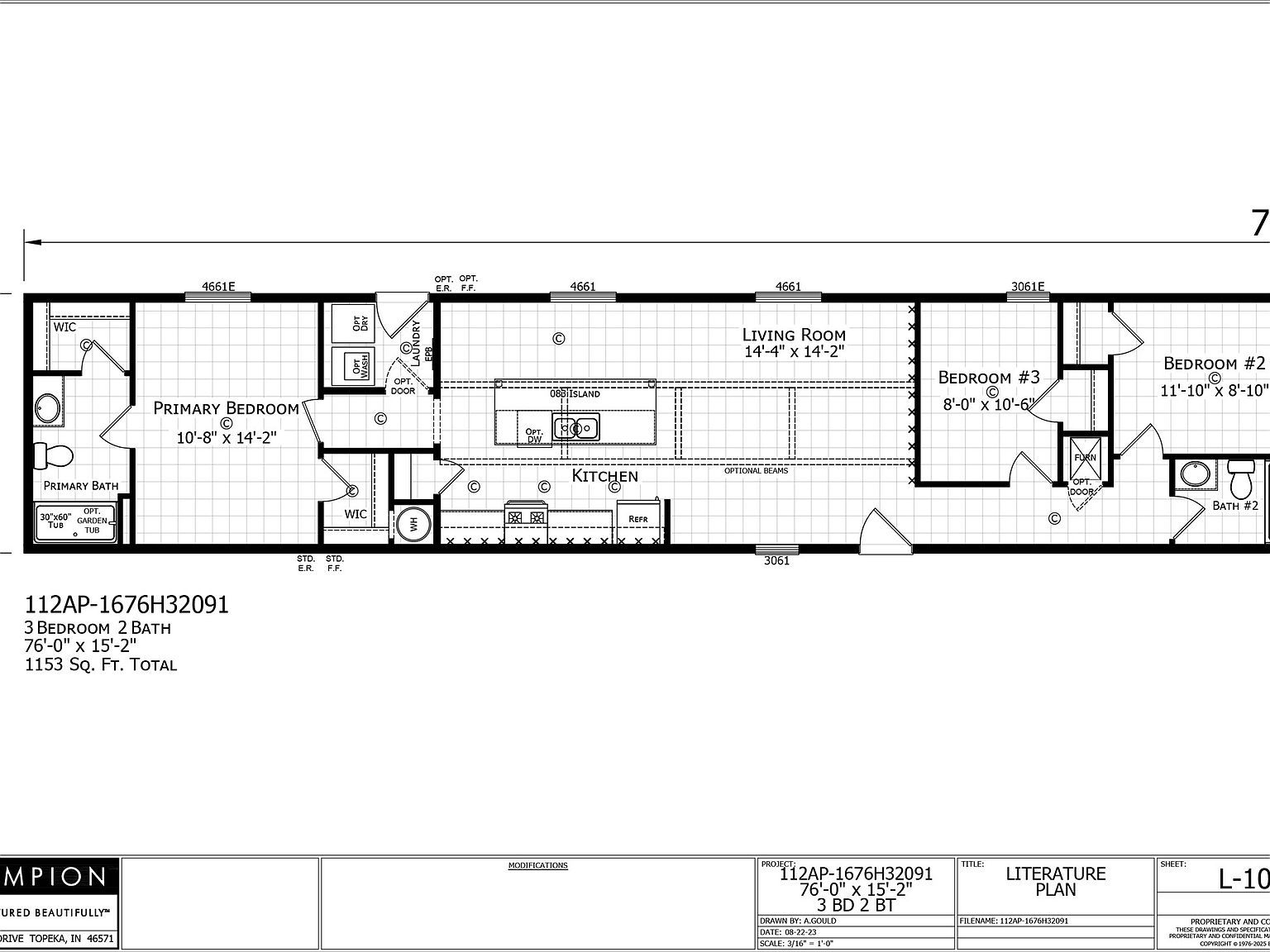
This is one youAca?!a?cll want to see in person. Welcome to easy, affordable living in the heart of Missoula. This brand new energy efficient, all electric Champion manufactured home offers 1,153 sqft of modern space with a high end feel. Inside, youAca?!a?cll find a bright, open floor plan featuring a spacious kitchen with a large island with counter seating, a farmhouse sink, stainless energy efficient appliances, and beautiful stone backsplash. The eye catching ceiling beams add character and a cozy feel, making the main living area both inviting and fun. The home offers 3 bedrooms and 2 bathrooms, including a large primary suite with a walk-in closet, a spacious soaking tub, and a double sink vanity for extra convenience. Centrally located in the heart of Missoula, youAca?!a?cll enjoy convenient access to everyday amenities. Just across the street are the Rail Link Dog Park, the Bitterroot Trail, Southgate Shopping amenities and dining, and nearby public transit options, making it easy to get around town. Perfect for Montana, this home was built with comfort and efficiency in mind, featuring insulation values of R38 in the ceiling, R19 in the walls, and R11 in the floor. The park itself is undergoing a full transformation in 2026, with older homes being removed and replaced, creating a refreshed and updated community feel. Lot rent is $625 and includes lawn mowing, water, sewer, and trash. Buyers must be approved with the property manager to purchase and the home must be owner occupied. Ask about lending financing options available!
2010 W Kent Ave Missoula, MT 59801