
(If you do not have an agent and work directly with the listing agent)
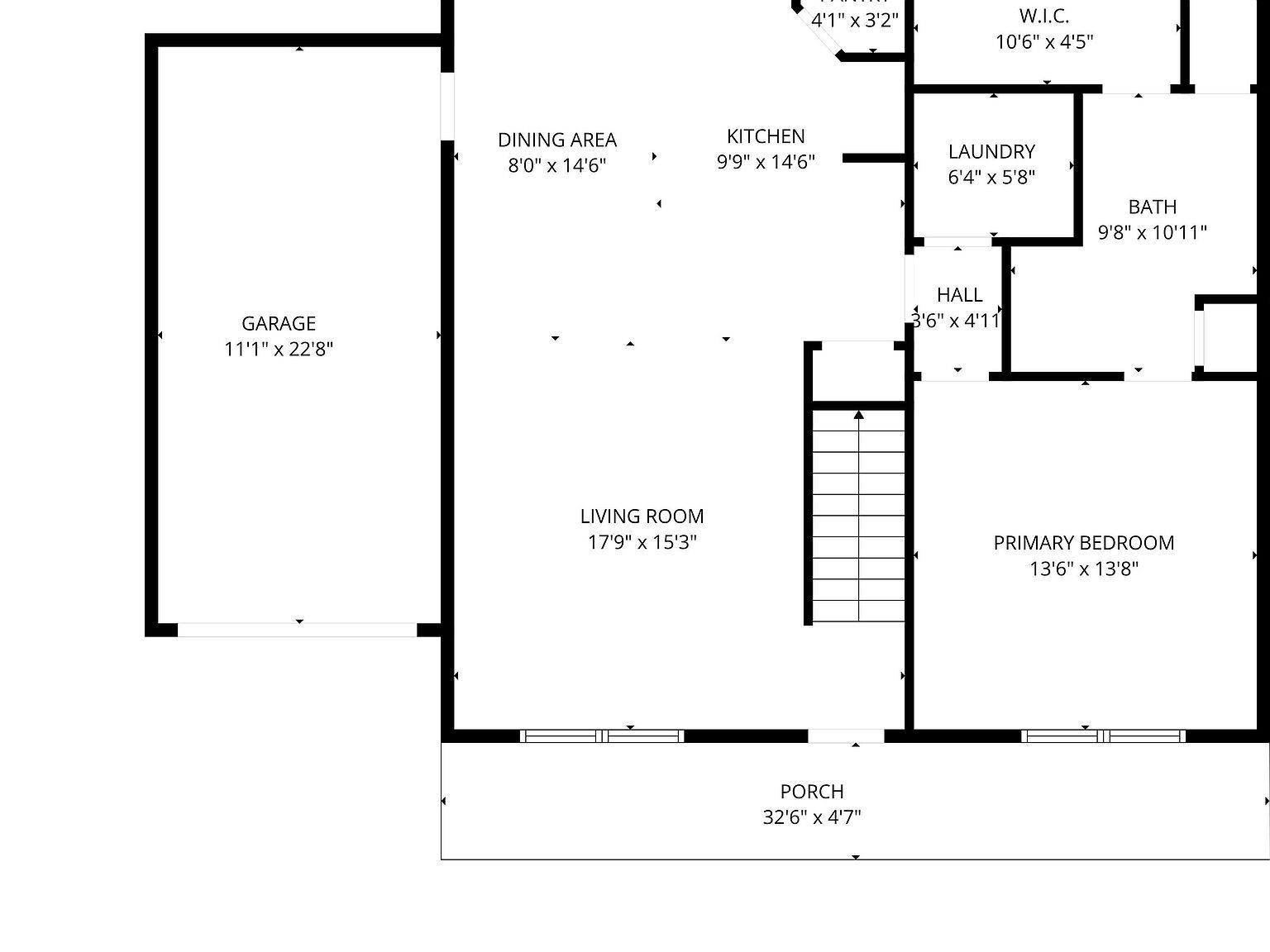
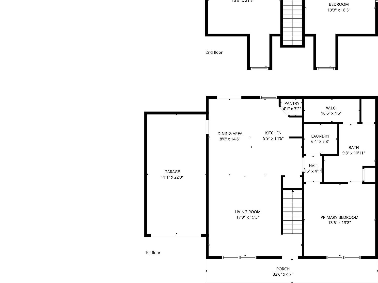
Brand new build in progress in Taylors! This upcoming home sits on a 0.35-acre lot and is currently in the framing stage, giving buyers an exceptional opportunity to customize the home to their liking. From interior finishes to design touches, therea??s still plenty of flexibility to make this home truly yours. Contact the listing agent for details on customization options and timelines. With a Cape Coda??inspired exterior and a modern, functional layout planned inside, this home will offer energy-efficient systems, quality construction, and comfortable everyday living once complete. The location puts you right in the center of everything: 15 minutes to Downtown Greenville, 15 minutes to Downtown Greer, 10 minutes to Hampton Village Shopping Center (Publix, Chick-fil-A, and more), Minutes to Cherrydale for shopping and dining, Close to Pebble Creek Golf Course, 15 minutes to Walmart. If youa??ve been searching for a new construction home with the ability to pick your finishes and put your style into the builda??this one delivers. Reach out today for a site visit and details on the customization process.
1859 Reid School Rd Taylors, SC 29687