
(If you do not have an agent and work directly with the listing agent)
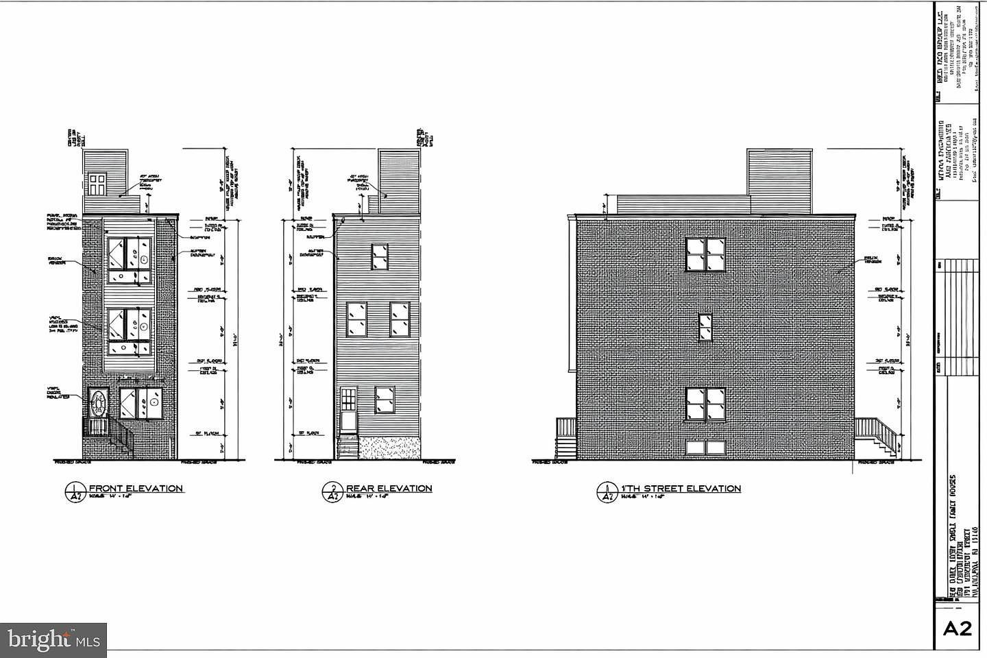
Presenting a rare corner lot opportunity in the heart of Graduate Hospital, directly across from Carpenter Green Park offering exceptional visibility, natural light exposure, and unmatched neighborhood presence. Zoned RM1 & Located in one of PhiladelphiaAca?!a?cs most desirable and rapidly appreciating communities, this prime parcel is ideally positioned just minutes from Center City, Rittenhouse Square, and the cityAca?!a?cs premier dining, shopping, and cultural destinations. Enjoy walkable access to CHOP and UPenn, along with seamless connectivity to I-95, I-76, I-676, bridges to New Jersey, and Philadelphia International Airport. Surrounded by high-quality new construction and strong buyer demand, this property presents an outstanding opportunity for builders, developers, and end users alike. Whether envisioning a custom three-story luxury residence for personal use or a high-performing resale project, this lot offers the flexibility and location to support exceptional value. Architectural plans for a proposed three-story single-family home, detailed exterior elevations, and a professional geotechnical report are available, providing a clear and efficient path to development. Corner parcels of this caliber in Graduate Hospital are exceedingly rare making 1701 Montrose Street a premier opportunity to build, invest, and create in one of PhiladelphiaAca?!a?cs most sought-after neighborhoods. Reach out today.
1701 Montrose St Philadelphia, PA 19146