
(If you do not have an agent and work directly with the listing agent)
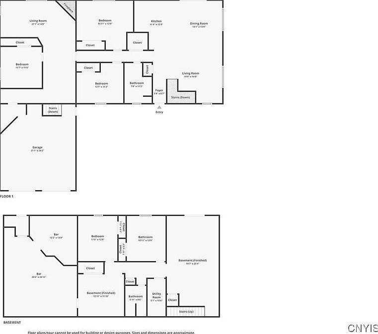
Do you need a larger home with more than 4 bedrooms? Would you like acreage with that home as well? Welcome to 17 Hilltop Lane, Volney, NY. This 4,000 square foot home features a completely remodeled kitchen and livingroom combination as you enter. Stay warm in the cold winter with your gas fireplace. Down the hall you'll see 3 bedroooms and a full bathroom. At the end of the hallway you'll be greeted by livingroom number two. The 2 car garage is off this space. The downstairs features two more bedrooms and a full bathroom in addition to another livingroom. From this livingroom you can access the backyard. The basement also has a bar area for wathcing the big game. Nearby is a room that could be used as a theater room. The home sits on just shy of 3 acreas of land. Some of it is backyard space and some of it is wooded. This home is secluded but close to shopping, dining and services. If you need a larger home with land this is the home for you. Call your Realtor and schedule a tour today.
17 Hilltop Ln Fulton, NY 13069