
(If you do not have an agent and work directly with the listing agent)
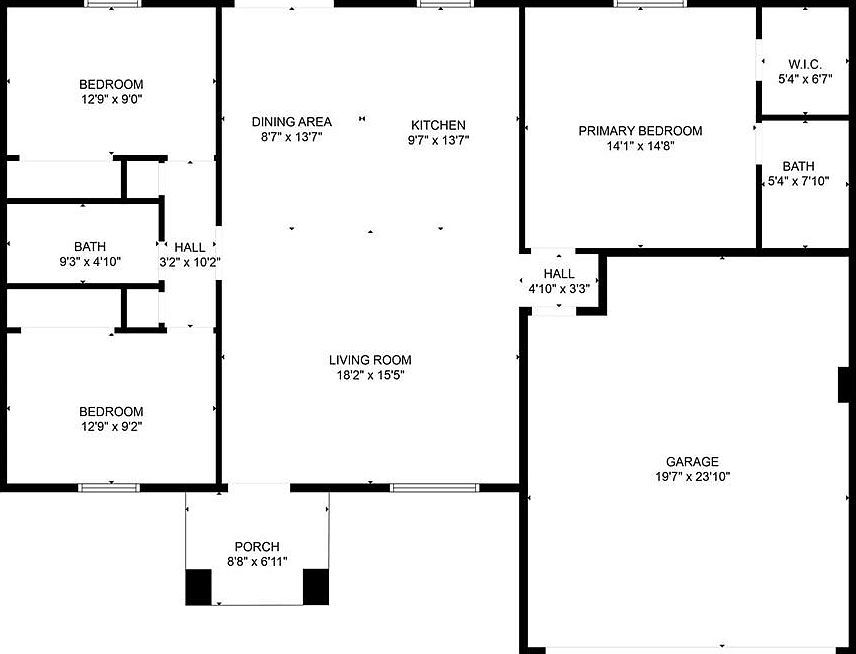
This 2022-built 3-bedroom, 2-bath Ocala home is located in Silver Springs Shores and offers modern finishes, a split bedroom layout, and valuable energy-efficient upgrades. The open floor plan features luxury vinyl plank flooring in the main living areas, carpeted bedrooms, and neutral tones throughout. The kitchen is equipped with stainless steel appliances, abundant cabinetry, and ample counter space, flowing seamlessly into a separate dining area and spacious living roomAca?!a??perfect for entertaining. The primary suite includes a private en-suite bath and walk-in closet, while two guest bedrooms share a full bath with tub/shower. Notable features include an owned solar system (seller to pay off at closing), owned water softener, and washer and dryer in the garage. The backyard offers a garden space, fig tree, and scenic open farmland views, creating a peaceful outdoor retreat. Located close to shopping, dining, schools, and recreation, with easy access to Downtown Ocala and The Villages, this move-in-ready home combines modern convenience with a tranquil setting.
167 Oak Cir Ocala, FL 34472