
(If you do not have an agent and work directly with the listing agent)
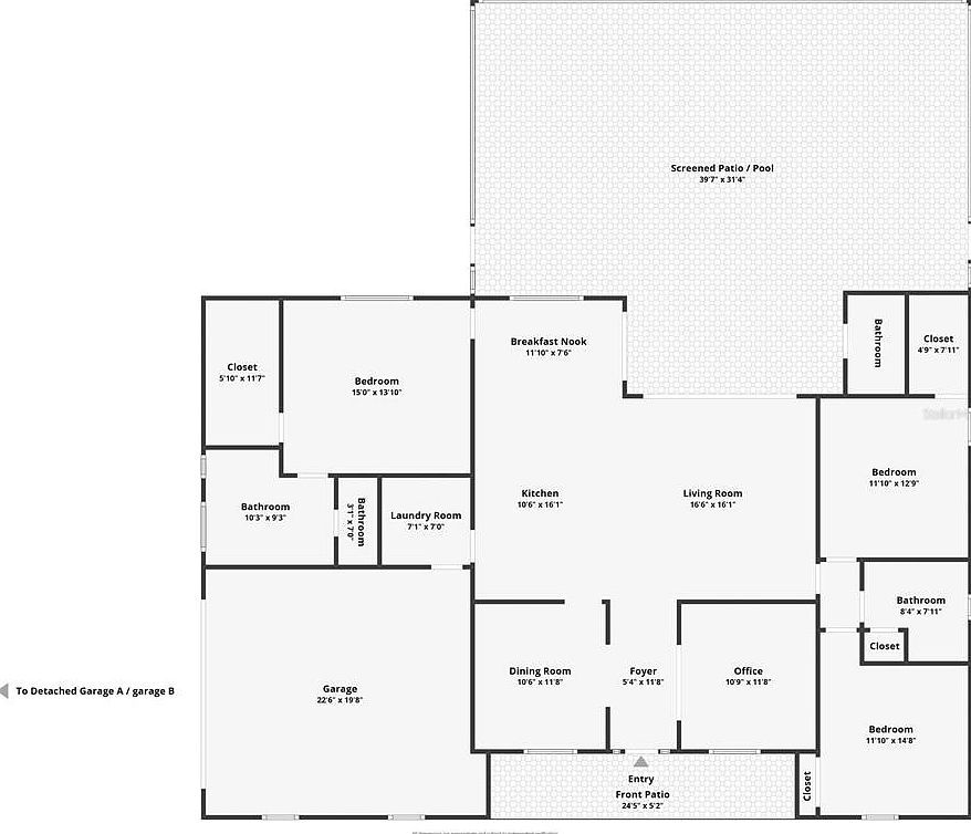
The Ultimate Florida Dream Property a?? 5 Acres of Pure Paradise! Welcome to 15890 County Road 675, Parrish, FLa??where country charm meets modern convenience on five breathtaking acres. This property isna??t just a home; ita??s a lifestyle upgrade waiting for its next lucky owner. As you approach the gated entrance (fully electric, of course), youa??ll pass by a fully stocked pond complete with a kayak lift and covered dock, perfect for soaking in those peaceful Florida mornings. Whether youa??re casting a line, paddling across the water, or just enjoying a cup of coffee, this pond is an absolute dream. Step inside the three-bedroom, two-and-a-half-bath home, where an open-concept design welcomes you with fresh paint, new flooring, and a completely renovated kitchen and master bath. The expansive screened-in pool area features a solar-heated pool with a propane backup for those chilly days and a half-bath, so wet footprints stay outside. And for those who love a classic front porcha??this one is straight out of an Americana dream, perfect for rocking chairs and sweet tea. But waita?| therea??s more! This property is an absolute paradise for car collectors, outdoor enthusiasts, and anyone who loves their space. Herea??s why: Over 2,700 square feet of fully insulated, powered, and air-conditioned outbuildings a?? This is not your average garage space. These structures are built to impress, featuring dual garage doors for easy access, upgraded insulation for year-round comfort, a water supply, and full air conditioning. And to top it all off, a massive Big A$$ Fan ensures optimal airflow, making this space perfect for car enthusiasts, hobbyists, or anyone in need of a high-end workshop. Whether you need a workshop, showroom, or the ultimate man cave or she-shed, this space is next-level. Therea??s room for several vehicles, and even the attached home garage is air-conditioned. RV Hookups & Endless Adventure a?? Hosting guests or living the RV life? Youa??re covered. Private Gun Range a?? Because backyard target practice is way better than driving to a range. Whole-House Generator a?? Florida storms? No worries. Youa??ll have full power when others are in the dark. White Vinyl Fencing & LiftMaster MyQ Access a?? The entire property is fully fenced, and you can control access remotely. Massive Concrete Driveway a?? No tight squeezes herea??park, turn, and maneuver with ease. And the best part? This peaceful oasis is just minutes from shopping, dining, and easy interstate access. Youa??ll have the best of country living with city convenience. Properties like this dona??t come around often. Schedule your showing today and see what makes this one-of-a-kind estate the ultimate Florida dream!
15890 County Road 675 Parrish, FL 34219