
(If you do not have an agent and work directly with the listing agent)
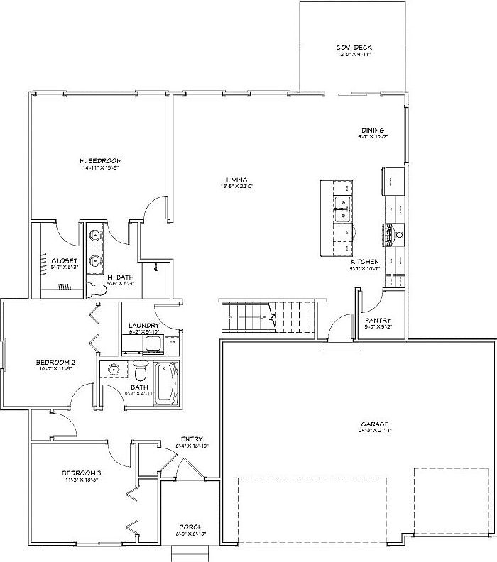
Elevate Homes presents the Aspen plan, part of their brand-new PEAK Series homes. All of the quality you've come to expect as a standard with Elevate Homes! This brand-new construction home features 3 bedrooms and 2 baths. Walking in you'll be greeted by a spacious great room. The kitchen features a 6.5a?? island, pendent lighting, stainless steel appliances and sink, and quartz countertops. The open concept allows for plenty of natural light and is great for entertaining. The unfinished basement is very spacious and perfect for storage or finish it out with an additional living space, full bathroom, 4th bedroom. On the exterior you'll find maintenance free 50-year hardie board siding, architectural shingles and an upgraded insulation package (R-19 Bat Insulation in Walls with Vapor barrier, and R-41+ Insulation blown in Attic). Other notable construction details include a triple plated foundation, 10 year structural foundation warranty, engineered roof trusses. There's still plenty of time for you to choose your own finishes on this home! Not interested in this particular layout? Elevate Homes can build your dream home in many developments throughout the greater Des Moines Metro! Call today for more details on this home or regarding building with Elevate Homes! Photos are similar to what will be built
1570 NW Parkside Ln Waukee, IA 50263