
(If you do not have an agent and work directly with the listing agent)
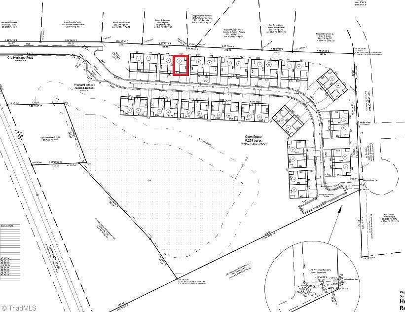
Brand NEW CONSTRUCTION townhomes in the heart of Randolph County. Heritage Townhomes offers ONE LEVEL living at its finest. Luxury finishes include LVT flooring throughout, granite countertops, and stainless steel appliances. All units boast a double garage, covered back porch (with an option of screening), and oversized pantry. ADA compliance featured throughout the entire community ensures comfort and convenience for all residents and guests. Enjoy life with the low maintenance an HOA ($105/month) allows. Total of 34 units to be built. Completion for lots 1-8 estimated March 2025.
130 Old Heritage Rd Randleman, NC 27317