
(If you do not have an agent and work directly with the listing agent)
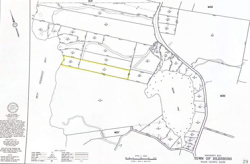
Escape to the serenity of Islesboro, Maine, with this remarkable 10.9-acre parcel of undeveloped land offering privacy, natural beauty, and panoramic westward-facing views a?? perfect for taking in stunning sunsets over Penobscot Bay. This unique property features approximately 250 feet of dramatic, rocky shoreline, where the rugged coast meets open ocean vistas. A peaceful creek flows through the land, winding its way to the bay along the northern boundary, adding both charm and natural character. Whether you're envisioning a seasonal retreat, year-round residence, or simply securing a rare stretch of Maine's coastline, this land offers incredible potential. The property also had a septic system design previously approved a?? a valuable head start for future development. The design will need to be updated, but it shows promise for building on this special site. Tucked within Islesboro's close-knit community, and accessible via ferry or private boat, this parcel is a rare blend of seclusion and island charm. Mature forest, water frontage, and sunset views make this a one-of-a-kind offering along Maine's beloved midcoast.
12D-12I Mildred Grace Rd Islesboro, ME 04848