
(If you do not have an agent and work directly with the listing agent)
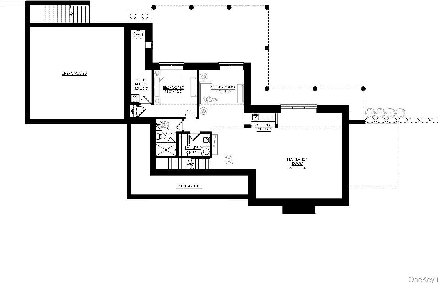
Brand-New Custom Construction in Armonk Brand-new custom construction modern colonial-style home set on 1.28 acres on a private lane in Armonk, offering exceptional quality and the opportunity for a buyer to still customize finishes. This 4-bedroom, 4-bath home with an additional powder room provides approximately 4750 sq ft of finished living space across three levels, total 5835 sq.f. A two-story foyer opens to below, creating a balanced connection between the main and upper levels and bringing additional natural light to the main floor. The first floor includes a kitchen, dining room, and living room with access to the deck, fireplace, along with a mudroom and powder room, designed for both daily living and entertaining. An attached two-car garage completes the main level. The second floor features a primary bedroom with two walk-in closets and a spa-style bath with soaking tub, separate shower, and double sinks. Two additional bedrooms, an office, laundry room, and an open hallway overlooking the foyer complete this level. The finished lower level offers flexible space, including a fourth bedroom with a full bath, a living or media room with wet bar, an office or recreation room, a second laundry area, and a mechanical room. Additional highlights include a covered porch, deck, and thoughtfully planned layouts throughout. Conveniently located close to Armonk town center, schools, and major commuting routes. Situated in the award-winning Byram Hills School District. Close to the White Plains Metro-North station, approximately 42 minutes by train or drive to Grand Central Terminal, Manhattan. Completion 2027.
11 Whippoorwill Ln Armonk, NY 10504