
(If you do not have an agent and work directly with the listing agent)
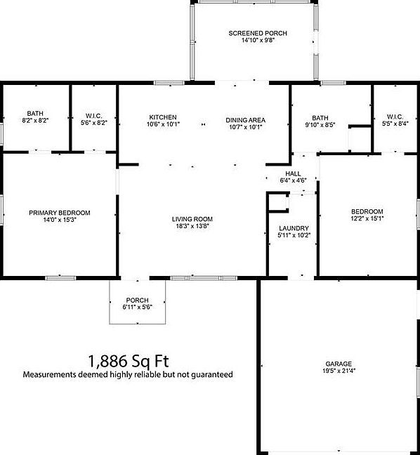
Welcome to this cozy 2-bedroom, 2-bathroom home located in the peaceful and friendly neighborhood of Spruce Creek in Ocala, Florida. This charming property offers the perfect combination of comfort, convenience, and updates. The home features a spacious layout with all new lighting fixtures, fresh paint, and replaced doors and baseboards throughout. We also added a brand new sink and toilet in the master bathroom. You'll love the added elegance of the new crown molding that enhances the homea??s appeal. The garage has been recently painted and insulated, offering a clean and functional space for your vehicles and storage. For your peace of mind, we are installing a BRAND-NEW AC SYSTEM and a NEW ROOF, ensuring the home is in top condition for years to come. The property also boasts NEW GUTTERS to complement its updated look. Convenience is key with this home, as ita??s just a short 4-minute drive to Publix and close to all shopping, dining, and entertainment options. Plus, youa??ll have quick access to West Marion Hospital, making this an ideal location for both comfort and practicality. Come see for yourself what makes this home so special! Book your showing today!!
10967 SW 65th Ave Ocala, FL 34476