
(If you do not have an agent and work directly with the listing agent)
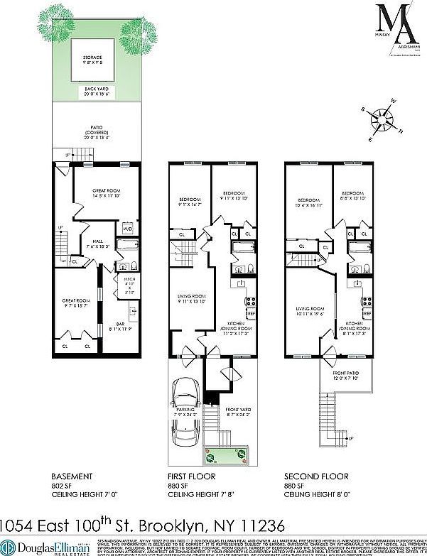
Introducing 1054 East 100th Street, a mid-20th-century legal two-family brick townhouse situated between Avenue J and Avenue K in the heart of Canarsie. The current layout of this well-proportioned property features a garden-level residence spanning approximately 880 sq ft, offering a separate kitchen, formal dining room, distinct living area, and two quiet, rear-facing bedrooms, along with a full bathroom on the main level. This unit flows into the 802-sq-ft basement, which includes three additional rooms, a washer-dryer, a full bathroom, and direct access to the backyard-providing flexible space for recreation, storage, or extended use. The second-floor residence mirrors the layout below across approximately 880 sq ft, complete with a separate kitchen and dining room, independent living room, two rear-facing bedrooms, and a full bathroom, and is further complemented by a charming front patio. The home does require TLC, presenting an excellent opportunity for a buyer to update and customize while unlocking its full potential. Additional features include a curb cut with parking in front of the house, a solid brick exterior, and a classic two-family configuration. Building dimensions measure 20 ft x 44 ft on a 20 ft x 110 ft lot, with R4 zoning and approximately 440 sq ft of additional unused FAR, offering future flexibility. Only a short distance from the L train at Canarsie-Rockaway Parkway, the property is also near the scenic Fresh Creek Nature Preserve, as well as local favorites such as Canarsie Park and Canarsie Pier, with convenient dining and shopping corridors along Flatlands Avenue and Rockaway Parkway.
1054 E 100th St Brooklyn, NY 11236