
(If you do not have an agent and work directly with the listing agent)
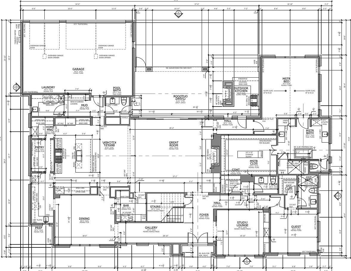
Estimated completion March 2026. Discover refined living in this custom-built residence situated on a 0.36-acre lot in the heart of the private school corridor. Designed by a premier Dallas builder, this home offers both elegance and practicality, with carefully curated details at every turn. The thoughtful floor plan includes 5 bedrooms, each with its own ensuite, plus 3 half bathrooms. Both the primary suite and a guest ensuite are located on the first floor, providing comfort and convenience for multi-generational living. A dedicated home office downstairs adds function and privacy for todayAca?!a?cs lifestyle. At the heart of the home, the gourmet kitchen is complemented by a separate back kitchen, designed for seamless entertaining and everyday use. Two laundry roomsAca?!a??one up and one downAca?!a??bring additional ease for busy households. An upstairs gameroom provides a private retreat and flexible living space. Outdoors, the rear-entry 3-car garage preserves curb appeal while offering generous storage and parking. The covered back porch with fireplace and built-in grill creates a perfect setting for year-round entertaining, while the spacious lot allows ample room for a pool and outdoor fun. Blending craftsmanship, modern luxury, and location, 10128 Coppedge Lane delivers a rare opportunity to own a bespoke home tailored for todayAca?!a?cs lifestyle.
10128 Coppedge Ln Dallas, TX 75229