
(If you do not have an agent and work directly with the listing agent)
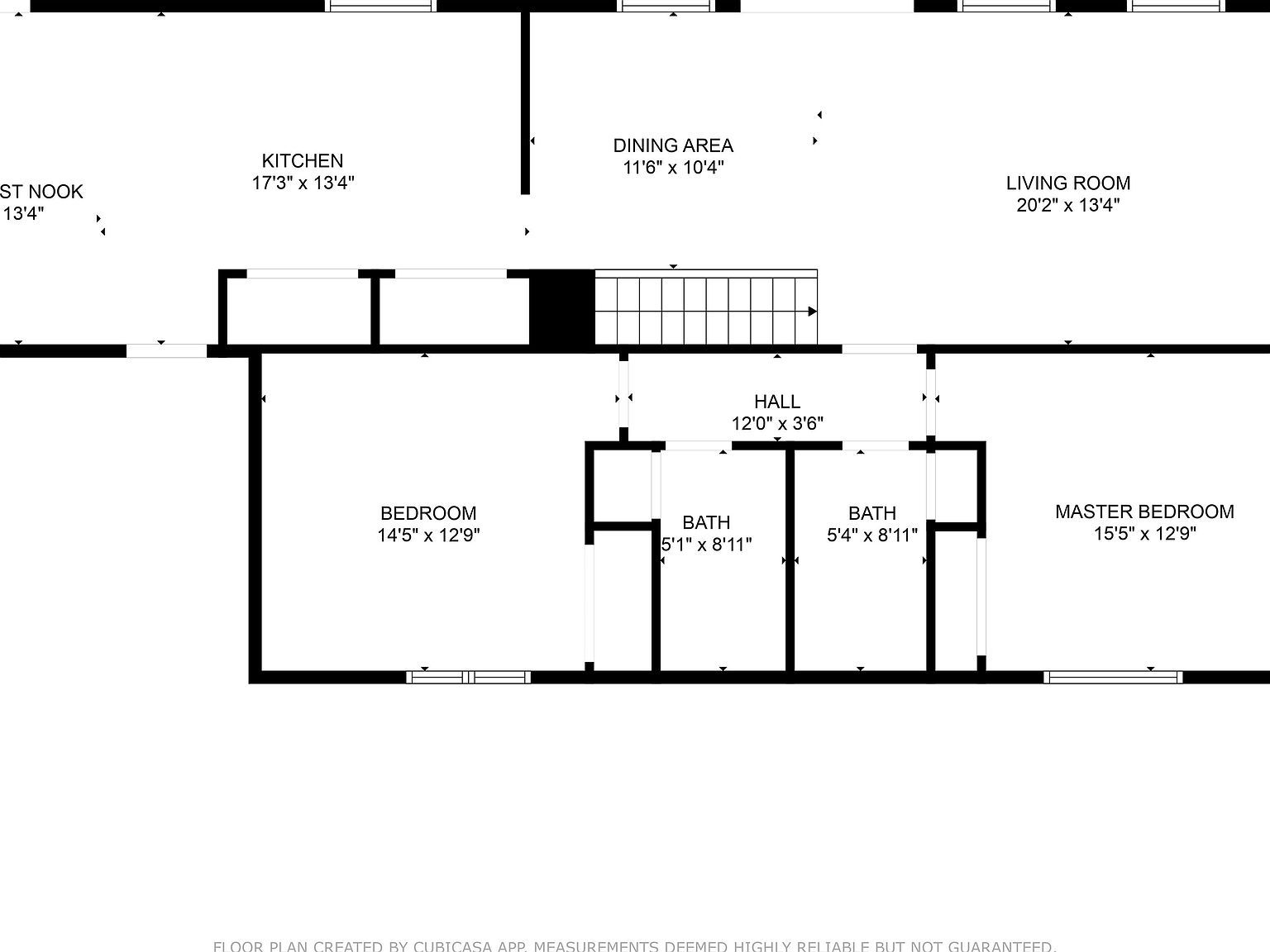
Seasonal Lake view of Crown Lake! Step out your primary bedroom sliding door to wrap around deck to enjoy the peaceful view. Large home with large bedrooms to spread out in. Main level includes 2 beds 2 baths, open living-dining area, as well as Large kitchen with island and laundry hook-ups. Lower level has family room currently set up as 3rd bedroom, 3rd bath and a separate office space. Plus workshop area which can be accessed through the office or from the exterior, with shelves and partial concrete floor. Walk out to your lower level patio with fenced area for pets or little ones. Shed for extra storage as well as one car carport. The lot next door is included and is partially cleared. Septic lines updated, HVAC less than 5 years old as well as some appliances. If your looking for large space and a great view, then take a look at this home before it is gone!
1012 Fairwater Cir Horseshoe Bend, AR 72512