
(If you do not have an agent and work directly with the listing agent)
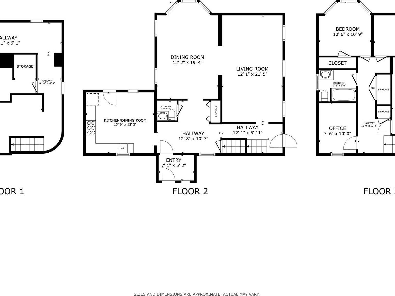
Step into the charm of this early 1900s Colonial featuring a covered front porch perfect for enjoying a quiet morning or winding down in the evening. Inside, this 4-bedroom, 1.5 bath home offers timeless details. The entry leads to the kitchen complete with stainless steel appliances. A door off the kitchen provides easy access to the backyard patio, perfect for outdoor grilling or relaxing. The formal dining room with a lovely bay window flows into a spacious living room where pocket doors can be closed to create a sense of privacy or left open for an easy flow. A convenient half bath rounds out the main level. Upstairs, youa??ll find four bedrooms and a full hall bath. Located within walking distance to Metro-North, and just a short drive to restaurants, shopping and major roadways, this home offers enduring character, flexible space, and a location thata??s hard to beat.
10 Juengstville Rd Croton Falls, NY 10519