
(If you do not have an agent and work directly with the listing agent)
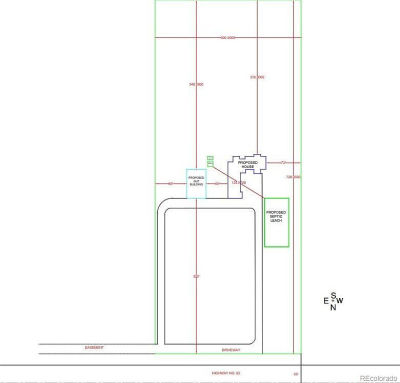
Seize this rare chance to acquire a versatile 0.95-acre commercial lot ideally situated on North College Drive in the heart of Cheyenne. Zoned CB, Community Business, this parcel offers exceptional flexibility for developers and investors seeking high-density residential projects or adaptive commercial ventures. Key Features & Development Potential: Zoning & Uses: - Zoned CB, Community Business, perfectly suited for multifamily housing such as apartments, townhomes, or condominiums. A zone change to retail/commercial is highly feasible and likely to receive city approval, unlocking opportunities for retail strips, office spaces, or mixed-use developments. High-Visibility Location: Positioned on one of Cheyenne's busiest corridors with daily traffic counts exceeding 21,000 vehicles a?? ensuring maximum exposure for any retail or residential project. Utilities in Place: A city water line runs directly through the property, streamlining infrastructure costs and accelerating development timelines. Sewer, electricity, and other utilities are readily accessible nearby. Site Advantages: Level topography, excellent frontage on N College Dr, and proximity to major amenities including shopping, dining, schools, and I-25/I-80 interchanges. Just minutes from downtown Cheyenne and the Wyoming State Capitol. This lot represents a blank canvas in a growing market with strong demand for both housing and commercial space. Whether you're building workforce housing, senior living, or pursuing a retail pivot, the location and zoning make it a low-risk, high-reward investment.
1 N College Dr Cheyenne, WY 82007