
(If you do not have an agent and work directly with the listing agent)
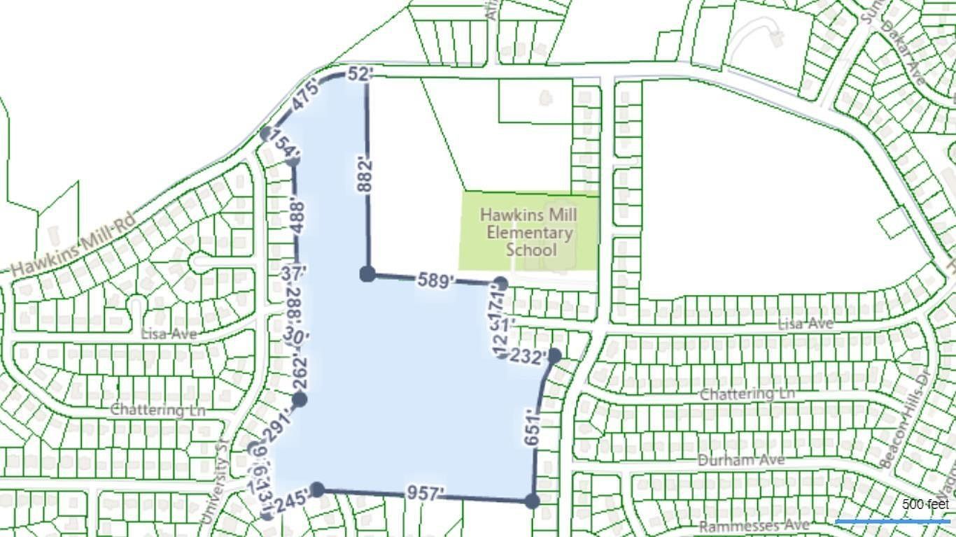
Tremendous investment opportunity for those looking to build! HUGE parcel of land in a popular area of 38127, directly behind Hawkins Mill Elementary. This is near the new Amazon & Nike facilities. Affordable price per acre, frontage along Hawkins. Over 29 acres offered. Could be a great development one day. There was additional adjacent acreage that was recently bought by another owner so a lot of momentum in this area.
0 Hawkins Mill Rd Memphis, TN 38127